702 Saulsbury LaneClinton, TN 37716
Due to the health concerns created by Coronavirus we are offering personal 1-1 online video walkthough tours where possible.

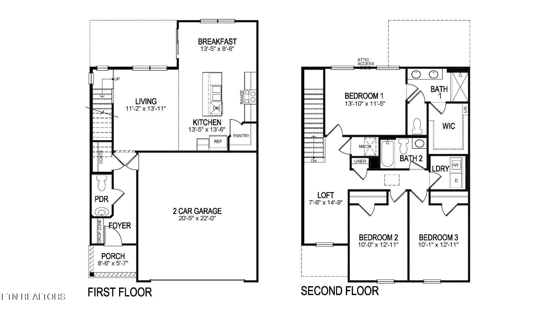
Welcome to the Craig at Mary's Pointe in Clinton. With 1,645 square feet of thoughtfully crafted living space, this home is perfect for anyone who loves an open, functional layout. Upstairs, you'll find a loft area ideal for a home office, playroom, or lounge. The primary suite offers a private retreat with ample space, a large walk-in closet, and an en-suite bath. Two additional bedrooms share a full bath. Downstairs, the heart of the home lies in the open-concept kitchen and living room. Designed for both everyday living and entertaining, the Craig delivers the ideal balance of functional living areas and a welcoming atmosphere. Come see how this floor plan can make your next house feel like home. Tradition Series Features include 9ft Ceilings on first floor, Shaker style cabinetry, Solid Surface Countertops with 4in backsplash, Stainless Steel appliances by Whirlpool, Moen Chrome plumbing fixtures with Anti-scald shower valves, Mohawk flooring, LED lighting throughout, Architectural Shingles, Concrete rear patio (may vary per plan), & our Home Is Connected Smart Home Package. Seller offering closing cost assistance to qualified buyers. Builder warranty included. See agent for details. Due to variations amongst computer monitors, actual colors may vary. Pictures, photographs, colors, features, and sizes are for illustration purposes only and will vary from the homes as built. Photos may include digital staging. Square footage and dimensions are approximate. Buyer should conduct his or her own investigation of the present and future availability of school districts and school assignments. *Taxes are estimated. Buyer to verify all information.
| a month ago | Listing updated with changes from the MLS® | |
| a month ago | Status changed to Pending | |
| 2 months ago | Price changed to $347,900 | |
| 4 months ago | Listing first seen on site |
Copyright © 2026 Knoxville Area Association of Realtors. IDX information is provided exclusively for consumers' personal, non-commercial use and may not be used for any purpose other than to identify prospective properties consumers may be interested in purchasing. Information is deemed reliable but is not guaranteed accurate by the MLS.

Did you know? You can invite friends and family to your search. They can join your search, rate and discuss listings with you.