116 Cedarberry St Lot111BOak Ridge, TN 37830
Due to the health concerns created by Coronavirus we are offering personal 1-1 online video walkthough tours where possible.




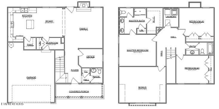
New Construction featuring The Bristol floor plan in The Meadows at The Preserve! The Bristol is currently under construction, expected to be complete in April 2026. The Preserve is more than a place to call home it's a lifestyle for families who relish in a resort like community at an affordable price. Amenities include the beach entry outdoor pool with circular tube slide, a complete Wellness Center with gym, indoor pool, hot tub, sauna, and steam room. You can also enjoy tennis, pickleball, and basketball courts and a playground! Enjoy the beauty of The Preserve through the walking trails that take you to the community fishing dock area. Full-service Marina and ship store open seasonally. The day use dock and boat launch allow you to explore or fish along the 5 miles of shoreline by boat, kayak or canoe. Covered boat slips offer electricity, fuel and lifts and are available for rent.
| 3 months ago | Listing first seen on site | |
| 3 months ago | Listing updated with changes from the MLS® |
Copyright © 2026 Knoxville Area Association of Realtors. IDX information is provided exclusively for consumers' personal, non-commercial use and may not be used for any purpose other than to identify prospective properties consumers may be interested in purchasing. Information is deemed reliable but is not guaranteed accurate by the MLS.

Did you know? You can invite friends and family to your search. They can join your search, rate and discuss listings with you.