132 Oppenheimer WayOak Ridge, TN 37830
Due to the health concerns created by Coronavirus we are offering personal 1-1 online video walkthough tours where possible.




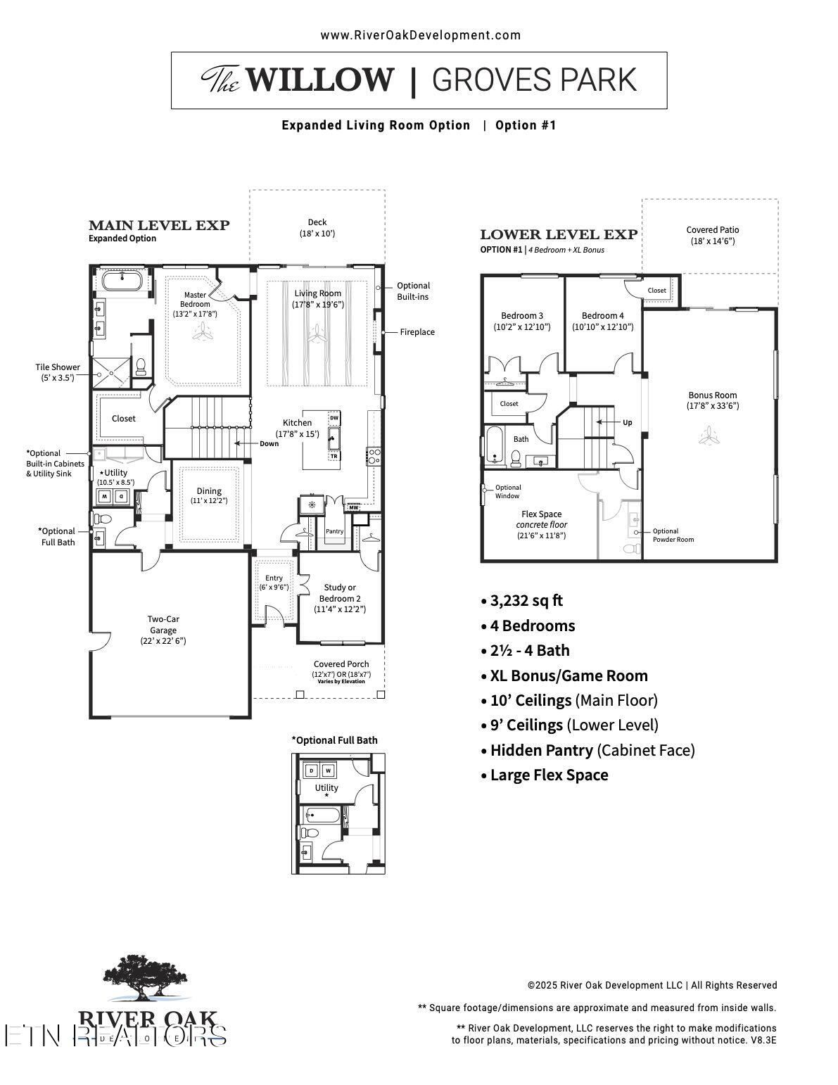
NEW CONSTRUCTION with plenty of high end upgrades! Home to be completed in Feb. 2026. Home built by River Oak Development, LLC in the Groves Park subdivision. There are additional lots available for this Willow floor plan (4 different exterior elevation options). Please contact the listing agent for more information. The Willow floor plan is a stunning two-story walkout home offering a perfect blend of modern elegance and functional living. This home features a main floor master suite and designer touches throughout. As you step into the grand foyer, you'll be immediately captivated by the abundance of natural light pouring in from the expansive windows and high ceilings. With 10-foot ceilings and 8-foot doors on the main level, the home feels open and airy throughout. The gourmet kitchen is a chef's dream, offering a large island with soft-close wood cabinets, hidden pantry, pot filler, spice rack, built-in artisan range hood, GE Profile appliances (including gas stove) as well as many other features that make cooking both stylish and functional. Designer touches are found throughout the home including floor to ceiling fireplace, 5 1/4 inch baseboards, 4-way wrap designer window trim with stool and apron, and multiple custom ceiling treatments. The main level laundry features a wall of customer cabinets, quartz countertops and a sink. The premium bathrooms provide a tru spa-like experience. The master suite features a customer tiled shower with linear drain and frameless glass doors, dual vanities with designer-framed mirrors and freestanding soaking tub. This floor plan features two porches and a generously sized balcony off of the great room; perfect for taking in the views. With a wood ceiling, Timbertech decking and ceiling fan, it's ideal for relaxing after a long day. The large, flat, fenced in rear yard provides an amazing setting for creating memories with family and friends. This home is equipped with smart technology for added convenience and comfort. The tankless gas water heater ensures the luxury of unlimited hot water. Groves Park is a beautiful neighborhood in the heart of Oak Ridge within a highly rated school district (in 2024 the elementary school received the national blue ribbon award). With its tree lined streets, charming details and future planned premium amenities, it's the perfect place to call home.
| 2 months ago | Listing first seen on site | |
| 2 months ago | Listing updated with changes from the MLS® |
Copyright © 2026 Knoxville Area Association of Realtors. IDX information is provided exclusively for consumers' personal, non-commercial use and may not be used for any purpose other than to identify prospective properties consumers may be interested in purchasing. Information is deemed reliable but is not guaranteed accurate by the MLS.

Did you know? You can invite friends and family to your search. They can join your search, rate and discuss listings with you.