Save
Ask
Tour
Hide
$424,900
39 Days On Site
7604 Freedom Bell Ave Lot 235Powell, TN 37849
For Sale|Single Family Residence|Pending
3
Beds
3
Total Baths
2
Full Baths
1
Partial Bath
2,477
SqFt
$172
/SqFt
2026
Built
Subdivision:
Belltown
County:
Knox County - 1
Due to the health concerns created by Coronavirus we are offering personal 1-1 online video walkthough tours where possible.


Save
Ask
Tour
Hide
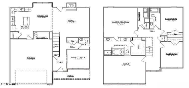
New Construction featuring The Walton floor plan in Belltown! The Walton is currently under construction, expected to be complete in September. Belltown amenities will include huge public park, pool, on premises shopping and dining, sports fields, private parks, playground, dog park, kayak launch, amphitheater, sidewalks, streetlights. Come look at tomorrow's subdivision, being built in Knoxville today!
Save
Ask
Tour
Hide
Listing Snapshot
Price
$424,900
Days On Site
39 Days
Bedrooms
3
Inside Area (SqFt)
2,477 sqft
Total Baths
3
Full Baths
2
Partial Baths
1
Lot Size
0.14 Acres
Year Built
2026
MLS® Number
1331215
Status
Pending
Property Tax
N/A
HOA/Condo/Coop Fees
$65 monthly
Sq Ft Source
Plans
Friends & Family
Recent Activity
| 4 weeks ago | Listing updated with changes from the MLS® | |
| 4 weeks ago | Status changed to Pending | |
| a month ago | Listing first seen on site |
General Features
Acres
0.14
Garage
Yes
Garage Spaces
2
Number Of Stories
2
Property Sub Type
Single Family Residence
Security
Smoke Detector(s)
Sewer
Public Sewer
SqFt Total
2477
Style
Craftsman
Water Source
Public
Interior Features
Appliances
DishwasherDisposalMicrowaveRange
Basement
Crawl Space
Cooling
Central AirCeiling Fan(s)
Fireplace
Yes
Fireplace Features
ElectricStone
Fireplaces
1
Flooring
CarpetVinyl
Heating
CentralElectric
Interior
Walk-In Closet(s)Kitchen IslandPantry
Save
Ask
Tour
Hide
Exterior Features
Construction Details
StoneVinyl SidingBrickFrame
Lot Features
Other
Patio And Porch
Deck
Community Features
Association Amenities
ClubhousePlaygroundPool
Association Dues
65
Community Features
SidewalksClubhousePlaygroundPool
HOA Fee Frequency
Monthly
MLS Area
Knox County - 1
Schools
School District
Unknown
Elementary School
Powell
Middle School
Powell
High School
Karns
Listing courtesy of Brooklyn Justice of Southland Realtors, Inc
Copyright © 2026 Knoxville Area Association of Realtors. IDX information is provided exclusively for consumers' personal, non-commercial use and may not be used for any purpose other than to identify prospective properties consumers may be interested in purchasing. Information is deemed reliable but is not guaranteed accurate by the MLS.
Copyright © 2026 Knoxville Area Association of Realtors. IDX information is provided exclusively for consumers' personal, non-commercial use and may not be used for any purpose other than to identify prospective properties consumers may be interested in purchasing. Information is deemed reliable but is not guaranteed accurate by the MLS.
Neighborhood & Commute
Source: Walkscore
Save
Ask
Tour
Hide
